Modern Eclectic Office

 

This tech-focused subsidiary of Sysco Foods found its new home in Downtown Austin, and in keeping with the vibrancy of the city, they craved a workspace that facilitated their laid back company culture - a space that is youthful, fresh, and blurred the lines between work and play. Their space featured a modern industrial look, which was then layered with lots of texture, color, patterns and lively murals and artwork from Austin based artists. The open-plan workspace was punctuated with lots of casual and private/semi private areas that offer opportunities for both solitary work and various collaborative experiences.

Interior Outfit Budget - $1mil  |  Area - 24,000 s.f  |  Project Handover - Aug. 2019

 
P+W_Sysco LABS_002_v1.jpg
P%2BW_Sysco+LABS_005_v1.jpg

Project Responsibilities

- Conceptual Development and Space Planning based on client brief

- Selection and specification of all furniture, materials, fixtures & finishes

- Value Engineering of selections to fit budget allocations

- Selection & coordination of artwork based on thematic context and installation

- Curation and staging of all decorative accessories in display areas

- Site supervision

TEAM:

Sysco Corporation HQ - Interior Designers & Project Manager - Kelyn Allen & Alexandria Garcia, Sean Doherty

Perkins & Will (Austin) - Architects

Project Photos

Unique retrofit to meet corporate expectations

 

This former Gold’s Gym facility in Salinas, California was transformed to house the Sysco Salinas Produce team - which coincidentally had a very active sports club! The old abandoned facility was renovated with great respect for the history of the building, and was successfully able to house the entire Salinas team while still retaining some of the key features that spoke to its peculiar history - most notably, the basketball court was carefully restored for use by the Salinas team as a multipurpose space for work training and friendly games. In keeping with workplace trends, opportunities for casual collaboration are sprinkled among the workspaces to allow for workspace flexibility. Refreshing green and blue tones were layered with neutral tones and natural textures to create a space that is inviting and fun, yet still meets corporate expectations.

Project Budget: $1.5mil  |  Area: 15,000 s.f  |  Project Handover: October 2019

 
SALINAS+RENDERED.jpg
unnamed%2B%25288%2529.jpg

Project Responsibilities

- Conceptual Development, Space Planning and construction drawings.

- Selection & Specification of all furniture, materials, finishes and finishes.

- Assisted in coordination of interior services.

- Site visits and supervision

TEAM:

Sysco Corporation HQ - Interior Designer & Project Manager - Kelyn Allen & Michael McLean

Avila Construction - Contractor/ On-site Project Manager

Rustic Tuscan with a Caribbean Twist - Team Lead

 

Textured stone walls, wooden trellises, and full-wall mural landscapes invite a Tuscan vineyard ambience to Rizzoni's Ristorante Italiano, one of the first few Italian restaurants in Trinidad. To combine rustic elements with a modern Caribbean twist, natural textures and bold colors were layered to add character to the interior and to keep the eyes dancing as they move from one space to the other.  Large vivid artwork, wrought iron chandeliers, laser cut fretwork panels and string lights create an interesting yet romantic ambience.

Project Budget - $1.2mil  |  Area - 7,030 s.f  |  Project Handover - Sept. 2014

 

Project Responsibilities

- Conceptual Development and Space Planning

- Production of all construction and presentation drawings and details, including custom millwork drawings

- Selection and specification of all materials, finishes, fixtures & finishes

- Assisted in Kitchen & Bar Design

- Assisted in coordination of service contractors

- Site supervision

- Management of all other in-house project responsibilities.

TEAM:

Designworks Ltd. - Interior Designer - Kelyn Allen

Project Engineering Ltd. - Project Manager

Restaurant Partners INC (Florida, USA) - Kitchen & Bar Designer

Interior Sections

Rizzoni's finds a second home - Team Lead

 

Following the success of the first Rizzoni's Ristorante Italiano, a second location was proposed inside in the new C3 Center (San Fernando), as part of a "Little Italy" indoor village.  Based on the same concept of the first Rizzoni's location, the design for the smaller footprint included the key design elements that make Rizzoni's Ristorante Italiano unique - the floor to ceiling wine cellar, mural walls, layered textures and colors, and lots of opportunities to include lush vine foliage, which invites the outdoor atmosphere of an Italian village indoors at C3 Center.

Project Budget: $0.9mil  |  Area: 6,000 s.f  |  Project Handover: Feb. 2017

 

Facade Section A

RIZZONI'S MOOD 1.jpg

Project Responsibilities

- Concept Development

- Preparation of Construction and Detail Drawings, custom millwork drawings

- Budget preparation

- Selection of all Materials, Finishes, Fixtures and Fittings

- Coordination of Interior Services with contractor

- Design and Specification of Kitchen and Bar Layout and Equipment

TEAM:

Designworks Ltd. - Interior Designer - Kelyn Allen, Anthony Parkinson (assist.)

Agostini Interiors Ltd. - Contractor/Project Manager

 

Reception Section B

Selection Of Construction Drawings

A Private Retreat for the First Family - Collaboration

 

The President's Cottage renovation houses His Excellency and his family for quiet getaways when they choose to leave their primary State Residence.  Accommodated in the old historic Governor's home above the old State Entertaining Rooms,  the very clean, cosy apartment retreat provides the space and privacy the family needs so that they can rest, recharge, and return to their most private selves.  Against the backdrop of a neutral background with ample natural lighting, spaces are layered with warm textures, inviting colours, and sparkling lighting to create the perfect retreat for the First Family.

Project Budget: $1.3mil  |  Area: 6,500 s.f  |  Project Handover: May 2015

 

Project Responsibilities

- Space Planning. Assisted in producing other critical construction & detail drawings.

- Oversaw Asset Inventory in State residence and client's private residence. Managed the restoration of historic antique furnishings and artwork for placement in each space.

- Assisted in Furniture procurement (Miami), and the selection of fixtures, fittings and finishes. Designed all custom window treatments.

- Assisted in coordination of interior services.

- Led the staging of the residence upon construction completion.

- Handled site supervision and conducted official site tours with the First Family and State officials upon request.

TEAM:

Designworks Ltd. & Dwelz Ltd. - Interior Designer/Architect - Kelyn Allen, Alison Grosberg, David Makhan

Unicom Ltd. - Contractor/Project Manager

 

The following projects are currently in progress, but first started with a revised floor layout for review and approval:

Ahamad Residence

 
 

This client was a recently married professional couple who, in wanting to start a family, sought to renovate an old acquisition to a create a modern family retreat.  In accordance with the client brief and budget, the new layout provides:

  • A more open, spacious layout on the ground floor that takes advantage of the mountain view behind the home, and allows each space to flow easily into the next

  • Addresses the kitchen and breakfast nook layout for better use of space

  • A redesigned pool, deck, bar and shower areas

  • A more open, spacious layout on the first floor that expands the family room, updates the layouts of the bathrooms and closets

PROJECT RESPONSIBILITIES: Space Planning & Design, Furniture Procurement (Miami) (in April 2016)

 
 

Sheppard Residence - In Progress

This busy family of 4 had a number of needs that needed to be addressed in their current layout.  In accordance with the client brief and budget, the proposed layout provides:

  • Updated, re-planned, secure communal spaces with more storage added

  • A larger master bedroom with larger bathroom and walk-in closet

  • Casual living & dining room for their sporty, pre-teen sons to unwind

  • Storage room converted to a homework room/study as their bedrooms could not accommodate individual study areas

  • Boys bathroom layout updated, made larger, and a tub added for muscle soaks as requested

  • Bedroom 4 converted to play/game room with a double door opening onto the back lawn, perfect for entertaining friends.

PROJECT RESPONSIBILITIES: Space Planning & Design (in September 2016)  

 

Recycle, Re-Use, Refurbish! - Team Lead 

 

With a very modest budget, this client approached us to design a small new storefront location in West Mall for her locally well-known housewares store chain.  The result was a tasteful, cheerful retail shop that made use of all of the old lamps, broken millwork and glass the client kept for years in storage from other closed shops.  Working closely with the contractor, new life was breathed into the old pieces and the client was thrilled to be able to get years more use on her previous investments!

Project Budget: $50,000  |  Area: 900 s.f  |  Project Handover: Nov. 2016

 

 

Interior Sections

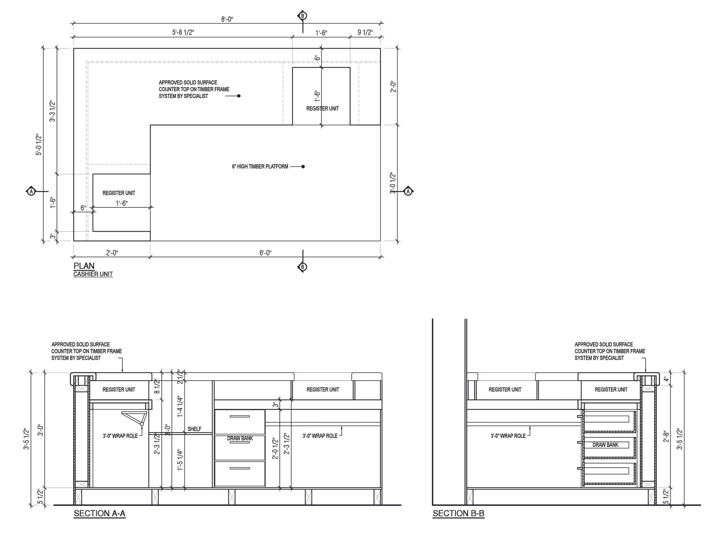
Sample Custom Millwork

Project Responsibilities

- Space planning and construction drawings

- Coordination of interior services

- Custom millwork drawings

- Material & finish selection

TEAM:

Designworks Ltd. - Interior Designer - Kelyn Allen, Rhea Ahong (assist.)

Complete Spaces Ltd. - Contractor

Small Library Coffee Shop Oasis - Proposal

 

Located in the National Library of Trinidad and Tobago, this cozy contemporary Cafe and Souvenir shop proposal combines the convenience of in-house dining and souvenir shopping in one place.  In this very small footprint, guests can peruse the souvenir items before they continue into the cafe for their refreshment needs.  Whether it be for a much needed break from studying, purchasing a sandwich for lunch or a good spot to have coffee with a colleague, the Cafe/Souvenir shop is the perfect spot to unwind and refresh.

Area: 750 s.f  |  Submitted:  June 2012

 

 

A new look for WASA

 

The Water & Sewage Authority's (WASA) new offices reflect their renewed commitment to service and modern processes.  Bold colours and and playful motifs distract from the densely populated open concept.  Their new open door policy with management ushered in semi private offices for local managers, which was new to the company but vastly improved internal relations.  "Break out" meeting spaces sprinkled throughout the workspace offered opportunities for informal collaboration and discussion among team members.  These updated spaces breathed new life into the company and to the morale of their team as they looked ahead to growth in the future!

Project Budget: $2.5mil  |  Area: 9,000 s.f  |  Project Handover: June 2012

 
WASA OFFICE 289.jpg

Project Responsibilities

- Space Planning and assistance in preparing all construction drawings, inclusive of custom millwork

- Assisted in the selection of materials, finishes and fixtures

TEAM:

Designworks Ltd. - Architect/Designer - Anthony Parkinson (Lead), Kelyn Allen (assist.)

Agostini Interiors Ltd. - Contractor

 

Selection of Construction & Millwork Drawings

When Ideas Come to Life

 

Presentation Boards were produced at the beginning of almost every major project and never failed to excite the clients as they saw their spaces come to life for the first time!  Below is a selection of some boards I produced from 2010 - 2016, that were later gifted to the clients for display in their offices or homes.

 

 

Although there are many Indian restaurants in Trinidad & Tobago, our favorite client discussed his idea of opening a new Indian restaurant that offered more traditional North Indian fare, with a much more upscale dining experience than the public was accustomed to.  I was allowed the opportunity to come up with a concept, a name, and attempt a logo.  This project still is under consideration by the client, for a tentative start in 2018.

Among my contributions to the Texas de Brazil project in 2010 was a 3D model and presentation boards of the proposed restaurant to be presented by the lead Designer, Anthony Parkinson, to the American franchise liaisons who subsequently greenlit the project.  Texas de Brazil has been operational in Trinidad and Tobago since 2011.

Like what you see?  Learn a little about me here.